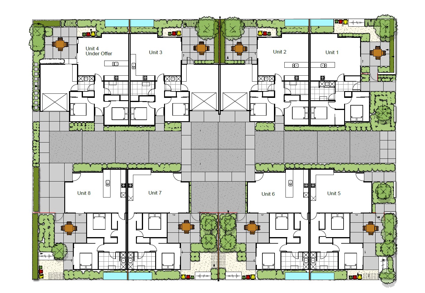
1/101 warden street, richmond canterbury 8013

$579,500
2 1
House size: 76 m² | Land size: 150 m²
Brand-New 2-Bedroom Home – Construction Underway

Unit 1 at 101–103 Warden Street is a thoughtfully designed, 2-bedroom home offering modern comfort, quality finishes, and easy low-maintenance living. With construction now underway and completion due July 2026, this is a great opportunity to secure your future home early.

The open-plan kitchen, dining, and living area is light-filled and functional, featuring contemporary joinery, Bosch appliances, and durable vinyl plank flooring. Sliding doors connect seamlessly to outdoor living, creating a welcoming space for everyday living or entertaining.

Both bedrooms are well-proportioned and finished with premium carpet, while the bathroom includes a tiled shower, modern vanity, heated towel rail, and laundry joinery. A heat pump, excellent insulation, and double glazing ensure year-round comfort and efficiency.

Built by Freedom Built and backed by a 10-Year Master Build Guarantee, this home offers peace of mind and quality you can rely on.

Exterior landscaping, pathways, bike shelter, planting and fencing complete the picture, ensuring this property is ready for you to simply move in and enjoy.

  • Townhouse
  • 2 bed
  • 1 bath
  • Land is 150 m²
  • Floor Area is 76 m²

Get in touch about this property