33 kite street, rolleston canterbury 7614

$709,500
3 2 1
House size: 148 m² | Land size: 495 m²
New Year, New Home!

UNDER CONSTRUCTION – All wrapped up ready for windows! Completion expected February 2026

Construction has begun on this beautifully designed duplex build in the heart of Rolleston. Positioned on its own freehold title, this home offers an effortless lifestyle with modern finishes, functional design, and a private, low-maintenance section.

Key Features:

3 bedrooms, 2 bathrooms including a master with ensuite and walk-in robe

Light-filled open plan living with seamless flow to the outdoors

Designer kitchen featuring Melteca cabinetry, stone-look laminate benchtops, Bosch appliances, and walk-in pantry

Stylish bathrooms with tiled shower and floor to the ensuite, quality vanities, brushed nickel tapware & heated towel rails

Energy efficient with double glazing, R2.8/R3.6 insulation, heat pump, and quality construction throughout

Single internal access garage with additional off-street park on the driveway

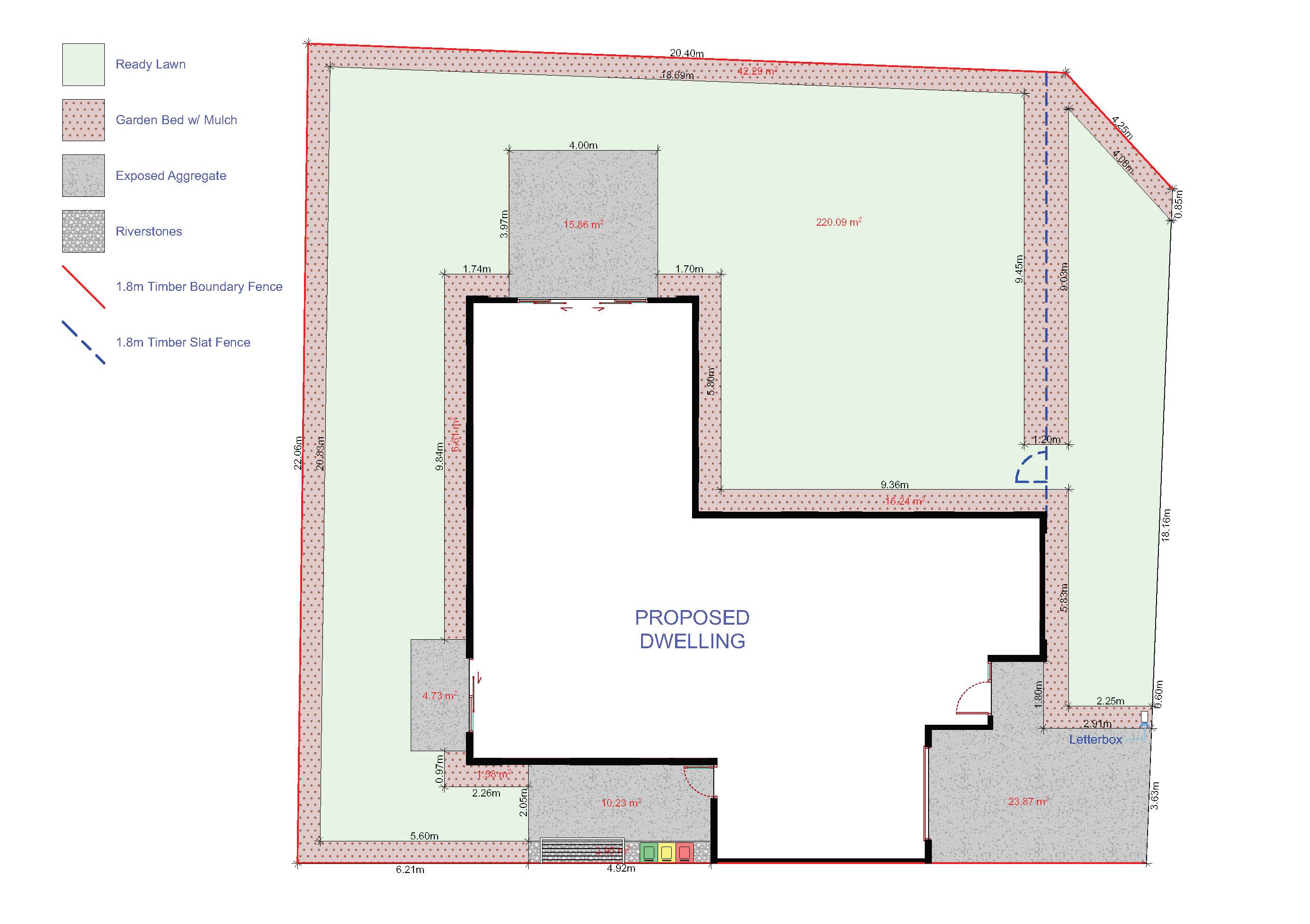
Landscaped with ready lawn, fencing, and mulched garden beds – ready to move in and enjoy

Location:

Set in the sought-after Crossing subdivision, you’ll love the easy access to Rolleston’s shops, schools, parks, and Christchurch motorway links.

10-Year Master Build Guarantee included.
Ideal for first home buyers, downsizers, or investors.

Floor area: 148.42m² over frames

Freehold 495m2 section – landscaped (excluding plants) and fully fenced.

  • House
  • 3 bed
  • 2 bath
  • 1 Parking Spaces
  • Land is 495 m²
  • Floor Area is 148 m²
  • 2 Toilet
  • Ensuite
  • Garage
  • Open Parking Spaces

Get in touch about this property