4/36 harker street, spreydon canterbury 8024

$585,000
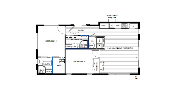
2 2
House size: 63 m² | Land size: 147 m²
Fresh, Contemporary & Move-In Ready

Effortlessly stylish and intelligently designed, 4/ 36 Harker Street offers modern living at its very best. Completed to Freedom Built’s renowned standard and crafted with an eye for quality, this brand-new two-bedroom home is the perfect blend of contemporary comfort, low-maintenance materials, and timeless architectural appeal.

From the moment you arrive, the striking cedar and insulated Plaster façade sets a warm, welcoming tone. Clean gable lines, thermally-broken joinery in bold black, and a cohesive palette of natural textures create a home that is both elegant and enduring. Step inside and you’re greeted by a sun-filled open-plan living space flowing seamlessly to the private north-facing deck—ideal for relaxed entertaining or peaceful morning coffee.

The designer kitchen features high quality finishes and Bosch appliances, offering both beauty and performance. The considered layout ensures everything has its place, with built in storage joinery keeping the space streamlined.

Comfort continues throughout with vinyl plank flooring, plush Godfrey Hirst carpet in the bedrooms, and a crisp interior palette of Manorburn Half walls and Okarito ceilings. The home includes a full bathroom as well as an ensuite with charred oak double drawer vanities, quality Uno chrome tapware, heated towel rails, and sleek corner showers.

Exterior landscaping, pathways, and fencing complete the picture, ensuring this property is ready for you to simply move in and enjoy.

Whether you’re seeking a first home, an effortless downsize, or a smart investment in a premium location, 4/36 Harker Street delivers exceptional style, comfort, and value.

  • House
  • 2 bed
  • 2 bath
  • Land is 147 m²
  • Floor Area is 63 m²
  • 2 Toilet
  • Ensuite
  • Open Parking Spaces

Get in touch about this property