Unit A – Due for completion in September.
Pay just a $1,000 deposit, with the balance due on settlement – secure your turnkey house and land package today.
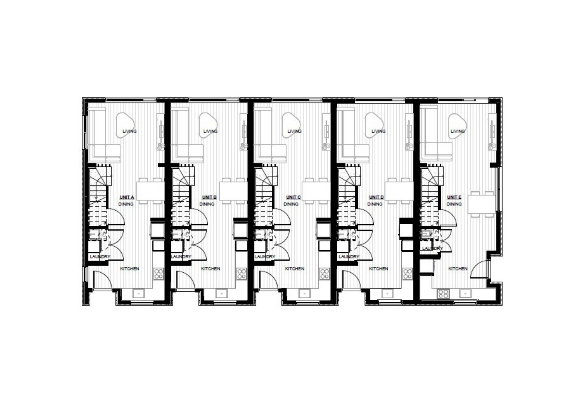
5 Units available.
Introducing a collection of brand new, under construction beautifully designed townhouses, offering modern style, smart layouts, and easy living.
Each townhouse features a well-designed two-story layout with open-plan living downstairs and private bedrooms upstairs. The ground floor includes the kitchen, dining, and living area, creating a comfortable large feeling space for everyday living and entertaining.
Upstairs offers two practically sized bedrooms, including a master with ensuite, plus a separate bathroom to service the second bedroom.
Rental appraisal on request.
Additional features include:
• Two bedrooms and two bathrooms
• Open plan kitchen, dining and living
• Quality kitchen with stone benchtop
• Modern tiled bathrooms
• Build includes 2 heat pumps
• Double glazing and insulated construction
• Low maintenance landscaping
• Master Build Guarantee
These homes are ideal for first home buyers, professionals, downsizers, or investors looking for a stylish, easy-care property in a prime Christchurch location.
- Townhouse
- 2 bed
- 2 bath
- Land is 148 m²
- Floor Area is 85 m²
- 2 Toilet
- Ensuite
- Open Parking Spaces