240 lincoln rolleston road, rolleston canterbury 7614

$839,500
4 2 2
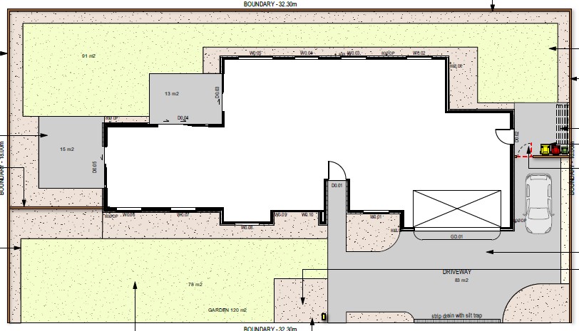
House size: 183 m² | Land size: 575 m²
Great Family Opportunity In Nobeline

Get into your new home with just a $1,000 deposit. No progress payments – simply pay the balance on settlement with our turnkey house and land packages.

Positioned in the new, Nobeline subdivision in Rolleston, this brand-new home currently under construction offers the perfect balance of modern style and practical design on a 575sqm section.

Large sliding doors connect the living area to the sunny outdoor patio and landscaped backyard, creating an indoor-outdoor flow. The fully landscaped section includes ready lawn, garden beds, specimen planting, and fencing.

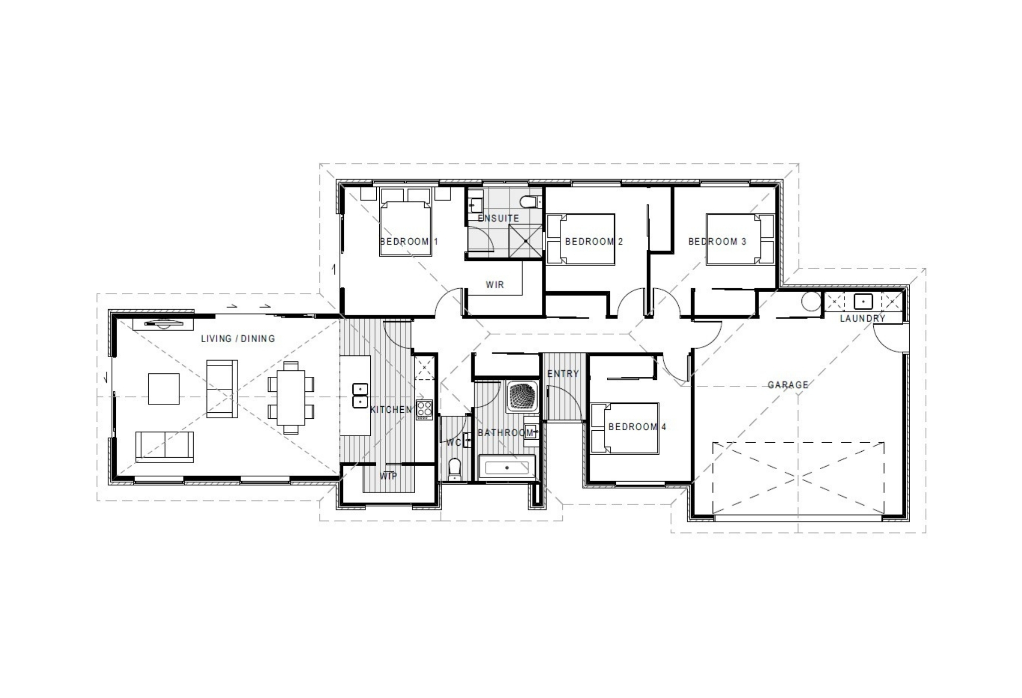
With a 183sqm floor plan, the home features four well-proportioned bedrooms, including a master suite complete with a walk-in wardrobe and private ensuite. The remaining bedrooms are serviced by a centrally located family bathroom with separate WC, creating a functional layout ideal for families, first-home buyers, or investors.

Floor Area: 183m² (approx.)

Section Size: 575m² (approx.)

Bedrooms: 4 generously sized double bedrooms with wardrobes

Bathrooms: 2 (including ensuite with tiled floor and shower)

Living: Open-plan kitchen, dining & living with seamless indoor-outdoor flow

Garage: Internal access double garage

Features & Inclusions

Designer kitchen with wrap around pantry, Bosch appliances, and soft-close cabinetry

Open-plan living & dining with plenty of natural light and sliders to the patio.

Master suite with double wardrobe and ensuite (tiled shower, wall mounted vanity, quality fittings).

Main bathroom with full-sized bath, separate shower, and modern fixtures.

Heat pump for year-round comfort.

Quality flooring package including carpet and vinyl planking throughout.

LED lighting and modern electrical plan, including data/TV points

Double glazing with thermally broken aluminium joinery.

10-Year Master Build Guarantee for complete peace of mind

Positioned in a growing community, close to all your everyday wants and needs, this low-maintenance home will be snapped up quickly.

Get in touch today.

  • House
  • 4 bed
  • 2 bath
  • 2 Parking Spaces
  • Land is 575 m²
  • Floor Area is 183 m²
  • 2 Toilet
  • Ensuite
  • 2 Garage

Get in touch about this property