31 kite street, rolleston canterbury 7614

$639,500
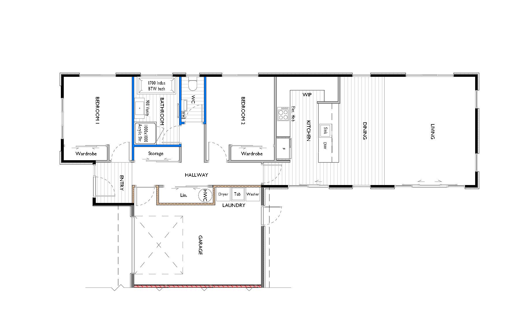
2 1 1
House size: 116 m² | Land size: 247 m²
Smart, Modern Living – Affordable New Build

UNDER CONSTRUCTION – Joinery is going in! Completion scheduled February 2026

This thoughtfully designed 2-bedroom home (duplex build) offers a smart and affordable opportunity to secure brand new in Rolleston. On its own freehold title, this home combines comfort, style, and easy-care living.

Key Features:

2 bedrooms, 1 bathroom plus separate WC

Open plan living & dining with great natural light and modern finishes

Contemporary kitchen with Melteca cabinetry, Bosch appliances, and breakfast bar

Quality finishes throughout – double drawer vanity, brushed nickel tapware, heat pump & LED lighting

Internal access garage plus off-street parking

Low-maintenance landscaped section with ready lawn, exposed aggregate concrete patio and driveway, and full fencing

Location:

Situated in the popular Crossing development, this home is close to Rolleston’s amenities, Selwyn Aquatic Centre, schools, parks, and motorway for an easy city commute.

10-Year Master Build Guarantee included
Perfect for first home buyers, downsizers, or investors.

Floor area: 116.07m² over frames

Freehold 247m2 section – fully landscaped (excluding plants) and fenced.

Pricing is Turnkey – you only pay a 10% deposit to confirm your purchase with no further payment until completion / handover.

  • House
  • 2 bed
  • 1 bath
  • 1 Parking Spaces
  • Land is 247 m²
  • Floor Area is 116 m²
  • Toilet
  • Garage
  • Open Parking Spaces

Get in touch about this property