608a selwyn road, rolleston canterbury 7614

Sold
3 2 1
House size: 138 m² | Land size: 380 m²
Buy Smart, Live Easy – Affordable & Turn-Key!

UNDER CONSTRUCTION – Roof is on, completion scheduled end of April!

Step into hassle-free, turn-key living at 608a Selwyn Road, Rolleston.
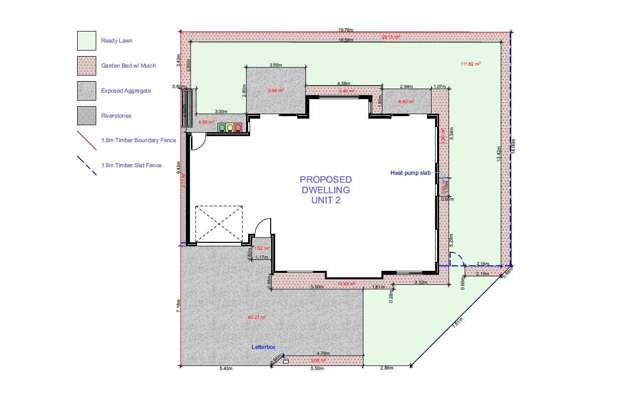
This brand-new three-bedroom home pairs sleek contemporary design with easy-care comfort. From its light-filled open-plan layout to premium finishes and fully landscaped, fenced outdoor areas, everything is ready for you to move in and relax from day one.

Set in one of New Zealand’s fastest-growing hubs, you’ll be moments from Rolleston Square and the exciting new Rolleston Fields precinct – home to cafés, gyms, shops, and essential services. Families will love nearby Acland Park with its adventurous playground, climbing ropes, slides, and pump track.

Every Freedom Built home includes a 10-year Master Build Guarantee plus a 24-month maintenance period, providing complete peace of mind.

Modern styling, trusted construction, and a location rich in amenities make 1/608 Selwyn Road the perfect choice for first-home buyers and savvy investors alike.

  • House
  • 3 bed
  • 2 bath
  • 1 Parking Spaces
  • Land is 380 m²
  • Floor Area is 138 m²
  • 2 Toilet
  • Ensuite
  • Garage
  • Fully Fenced

Get in touch about this property